
![]() |
Mitglied im Immobilienverband Deutschland IVD |
Grundstücke in einem besonderen Wohnprojekt in Ostseenähe (15 km)
| Lage: | Dörpstraat, Barghorst, Ahrensbök |
| Größe: | 381 m² |
| Kaufpreis: | 103.251,- € (271 €/m²) |
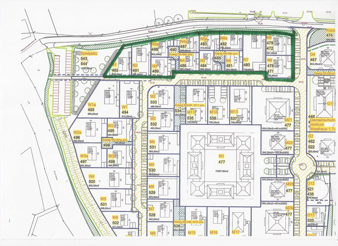
In Barghorst, einer Dorfschaft innerhalb der Großgemeinde Ahrensbök, entsteht ein außergewöhnliches Wohngebiet auf einer Fläche von ca. 5,5 ha. Im gesamten Baugebiet sollen ca. 200 Wohneinheiten entstehen, aufgeteilt in Ein- und Zweifamilienhäusern sowie in Mehrfamilienhäusern. Die entstehenden Wohnungen sollen als Miet- oder Eigentumswohnungen angeboten werden, teilweise auch als geförderte Wohnungen.
Für einen Teilbereich sind die Erschließungsarbeiten jetzt abgeschlossen. Ein Haus steht bereits kurz vor der Fertigstellung, weitere Bauprojekte sind gestartet. Zum Verkauf stehen 13 Grundstücke, ruhig an einer Anliegerstraße gelegen. Es handelt sich um die im Parzellierungsplan mit dem Buchstaben N gekennzeichneten Grundstücke N1 - N9 sowie N3a - N6a. Alle N-Grundstücke sind noch zu erwerben. Eine Käuferprovision fällt nicht an. Die Einfamilien- bzw. Doppelhausgrundstücke haben eine Größe zwischen 300 und 550 m², eines der Grundstücke ist 748 m² groß. Der Grundstückspreis pro m² beträgt 271,00 €. Es gibt keine Baubindung, Sie können Ihr Traumhaus vom Baugeschäft Ihrer Wahl erstellen lassen.
Die Gemeinde Ahrensbök macht in Ihrem Bebauungsplan Nr. 68 folgende Vorgaben: Es handelt sich um ein Allgemeines Wohnungebiet mit eingeschossiger Bauweise, einer GRZ von 0,25 und einer Firsthöhe von höchstens 9,5 m. Als Dachformen sind erlaubt: Sattel-, Walm-, Krüppelwalm- und Zeltdächer mit einer Dachneigung von 25-55°. Die Dacheindeckung muss aus nicht glänzenden Tonziegeln in den Farben rot, grau oder braun bestehen oder als Reetdach ausgeführt werden. Als Fassadenmaterial sind Verblendmauerwerk (Farbe rot oder terracotta), Außenputz (Farbe hellgrau bis sandfarben) oder Holz (naturfarben oder hellgrau gestrichen) möglich. Die Übergabeschächte für Schmutz- und Regenwasser sind bereits auf den Grundstücken vorhanden und werden vom Erschließer kostenfrei übergeben.
Auch bei Interesse an anderen, als den angebotenen N-Grundstücken, kontaktieren Sie mich gern. Ich leite die Anfrage an den entspechenden Bearbeiter weiter.
Tolle Immobilie mit vielen Möglichkeiten. Nur 15 km zur Ostsee
| Lage: | 23623 Ahrensbök |
| Zimmer: | 9 |
| Wohnfläche | 192 m² |
| Grundstück: | 681 m² |
| Baujahr: | ca. 1850 |
| Kaufpreis: | 437.000 € |
| Ausstattung: | nicht unterkellert, Dach ausgebaut, Terrasse, Garten, 3 Stellplätze, Bad mit Dusche, Gäste-WC, Einbauküche |
Diese gepflegte Immobilie stammt ursprünglich aus dem Jahre ca.1850. Im Laufe der Jahre sind viele Umbaumaßnahmen vorgenommen worden
Einfamilienhaus auf großem Grundstück in ruhiger Lage
| Lage: | 23623 Ahrensbök OT Dunkelsdorf |
| Zimmer: | 5 |
| Wohnfläche | 100 m² |
| Grundstück: | 954 m² |
| Baujahr: | 1973 |
| Kaufpreis: | 345.000 € |
| Ausstattung: | Carport mit Abstellraum, 2 Bäder, Keller mit Hobbyraum |
Dieses Haus möchte aus seinem Dornröschenschlaf geweckt werden. Dazu ist sicherlich einiger Renovierungs- und Sanierungsbedarf vonnöten.
EFH in ruhiger, familienfreundlicher Lage
| Lage: | 23623 Ahrensbök |
| Zimmer: | 5 |
| Wohnfläche | 114 m² |
| Grundstück: | 604 m² |
| Baujahr: | 1960er Jahre |
| Kaufpreis: | 269.000 € |
| Ausstattung: | Garage, elektr. Rollläden, überdachte Terrasse, |
Das Haus eignet sich ideal für Familien. Es gibt ausreichend Platz und viele Möglichkeiten, sich zu entfalten. Das Grundstück hat eine ideale Größe, nicht zu groß und nicht zu klein.
Großer Bungalow in kinderfreundlicher Lage.
| Lage: | 23623 Ahrensbök |
| Zimmer: | Haus wurde als 2-Fam-Haus genutzt |
| Wohnfläche | 166 m² |
| Grundstück: | 763 m² |
| Baujahr: | 1972 |
| Kaufpreis: | 379.000 € |
| Ausstattung: | Keller, Hobbyraum im Keller, Süd-West-Terrasse |
Aufgrund der langjährigen Nutzung als Mietobjekt weist das Haus Renovierungs- und Sanierungsbedarf auf.Aufgrund der langjährigen Nutzung als Mietobjekt weist das Haus Renovierungs- und Sanierungsbedarf auf.
Interessantes Haus mit 2 Einliegerwohnungen
| Lage: | 23623 Ahrensbök |
| Zimmer: | 7 |
| Wohnfläche | 200 m² |
| Grundstück: | 603 m² |
| Baujahr: | 2 Geschosse 1909 u. 1987 |
| Kaufpreis: | 269.000 € |
| Ausstattung: | teilweise unterkellert, Dach ausbaufähig, Öl-Zentralheizung |
Das Haus wurde im Jahre 1909 als Wohnhaus für Mitarbeiter des im Dorf ansässigen Gutshofes in massiver Bauweise errichtet. 1987 wurde das Wohnhaus durch einen Anbau, bestehend aus EG, DG und Keller erweitert.
Handwerker aufgepasst!
| Lage: | 23623 Ahrensbök |
| Zimmer: | 3 |
| Wohnfläche | 85 m² |
| Grundstück: | 971 m² |
| Baujahr: | 1979 |
| Kaufpreis: | 149.000 € |
| Ausstattung: | als Ferienimmobilie geeignet, Energie: Gas |
Dieses massive Einfamilienhaus hat eine Wohnfläche von ca. 85 m². Es wurde im Jahr 1979 auf einem 971 m² großen Grundstück errichtet. Es besteht aus einem Erdgeschoss, Kellergeschoss und einem nicht ausbaufähigem Dachgeschoss. An das Wohnhaus ist eine ca. 18 m² große Garage angebaut. Das Objekt ist sanierungsbedürftig, es befindet sich auf den Stand des Baujahres. Das große Grundstück bietet einen herrlichen Ausblick auf Wiesen und Felder.
Top gepflegte Immobilie mit Weitblick ins Grüne
| Lage: | Dörpstraat 1, 23623 Ahrensbök |
| Zimmer: | 4 |
| Wohnfläche | 130 m² |
| Grundstück: | 643 m² |
| Baujahr: | 1978 |
| Kaufpreis: | 318.000 € |
| Ausstattung: | Terrasse, Garten, Garage, Stellplatz, Bad mit Wanne, Gäste WC, renoviert, Einbauküche |
Dieses tipptop gepflegte, massiv gebaute, unterkellerte, dunkelrot verblendete Einfamilienhaus in den Maßen ca. 9 x 11 m, wurde 1978 auf einem 643 m² großen Grundstück gebaut. Das Dach ist 2004 geschmackvoll mit hochwertigen, schwarzen, edelengobierten Pfannen eingedeckt worden. Rechts vom Haus befindet sich eine freistehende, massiv gemauerte, verblendete Garage mit Flachdach.
Wohlfühloase für Pferdeliebhaber
| Lage: | Siblin, Ahrensbök |
| Zimmer: | 8 |
| Wohnfläche | 200 m² |
| Grundstück: | 34.467 m² |
| Baujahr: | 1870 |
| Kaufpreis: | 635.000 € |
Bei dieser außergewöhnlichen Immobilie handelt es sich um ein herrliches Anwesen, das von der Lage, Größe und Anordnung nicht oft auf dem Markt zu finden ist. Das Objekt besteht aus zwei Flurstücken. Auf dem ca. 1.700 m² großen eingezäunten Wohngrundstück, dass sehr hübsch mit einem kleinen Gartenteich angelegt ist, befindet sich ein traumhaft schönes reetgedecktes Fachwerkhaus, Bj. ca. 1870. Die Wohnfläche beträgt ca. 200 m². Im Dachschoss mit angrenzender herrlicher, 49 m² großen, Dachterrasse, befindet sich noch eine ca. 100 m² große Ausbaureserve.